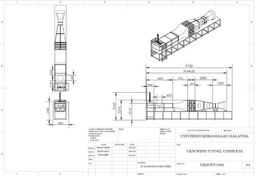
Design, build and commission our own wind tunnel is a large project. It started in April 2013 and expected to complete in March 2015. A lot of the faculty staff is involved, they are from the Department of Mechanical and Materials and the department of Civil and Structure, the Faculty of Engineering Built Environment. Final year students and research students have been involved in the project. Upon successful commission, the wind tunnel would be able to perform for experiments with velocity up to 30 m/s with test section 3.0 m (length) x 0.5 m (height) x 1.0 m (width). The wind tunnel is an open-return type, power by 18 kW motor-fan. It has a variable speed drive (VSD) capability i.e. air velocity could be control using programming codes.

The wind tunnel has already have its own 2 axis traversing system, a particle image velocimetry (PIV) and bunch of delicate equipment such as hotwire anemometry, pitot-tube-pressure transducer, temperature, room humidity and barometric pressure sensor.

 

The design of the wind tunnel is undertaken in-house where chief designer is Dr. Wan Aizon Wan Ghopa supported by PhD student Ashraf A’mer Abbas Alsaffar and final year student (FYP) Muhammad Firdaus Mohd. The Fabrication is led by Master’s student En. Mohamad Izhar Ghazali (from Malaysian-France Institute) who specializes in metal tooling. Equipment set up (such as location and PIV), security and logistic led by Dr. Wan Hanna Melini Wan Mokhtar . PIV set up by En. Zulkhairee.

 

The detailed planning, design and construction of the wind tunnel has been documented in this article title The Development of a Multi-Purpose Wind Tunnel (selected pages). Some of the important Scilab codes to support automatic operation is provided in this document (WT Connectivity).

 

Activities

Month

Activities

10/2014

Installing the stand

Completed designs (stainless steel sections: contraction nozzle etc)

Purchased acrylic

 

11/2014

Contractor Received PO RM5,750 for ducting

Contractor received payment RM14,000

Completed acrylic section

Preparing shop drawings

Confirmed source for 18Kw fan with JPP, UKM

Paint stand with Pangkor Green

 

12/2014

Contractors received POs for motor and fan.

Fan and motor assembly.

 

1/2015

Assemble all parts

Install electricity

Install PIV

Retest 2 axis traverse

 

3/2015

Make flanges connecting acrylic parts.

Frame for black curtain (laser/PIV)

 

4/2015

Visit by UPM

 

5/2015

Installations of all main parts

 

7/2015

Completion of wind tunnel including connections to VFD,

Traverse, hotwire anemometry, pressure tranducer & Pitot

Tubes and other sensor using Scilab.

 

 

Selected pictures

It is finally completed in July 2015

 

Engineering drawings

Isometric view of wind tunnel

Installation of main body on 7 May 2015 (More pictures)

Visit by UPM researchers on 15 April 2015 (More Pictures)

Transportation, unloading and placing main equipment 10 February 2015 (more pictures)

Site visit to stainless steel section fabrication yand in Pasir Gudang on 4 December 2014, (more pictures)

Fabrication activities at Malaysian France Institute (MFI) on 21 May 2014, (more pictures)

Miscellaneous selected pictures along the way , (more pictures)

 

 

 

 

We would like to express our gratitude towards the following good-hearted contributors

 

No.

Contributors

Contributions

1.

Alam Meridian (M) Sdn. Bhd.

Installation of main frames

2.

Resolute Engineering Sdn. Bhd.

Installations of main switch board (MSB) and 3-phase cabling

3.

PM. Ir. Dr. Othman Jaafar

Prof. Dato’ Ir. Dr. Othman A Karim

Allowing to locate the wind tunnel at Makmal Kejuruteraan Sumber Air dan Pantai

4.

PM. Dr. Rozli Zulkifli

Installation works (FRGS RM5,750.00)

 

5.

Dr. Mohd. Rasidi Rasani

Installation works (GGPM RM5,750.00)

 

6.

Dr. Mohd Radzi Abu Mansor

Motor and Fan (GGPM RM10,000)

 

7.

Dr. Wan Mohd Faizal Wan Mahmood

VSD and accessories AP-2012-010 (RM8,500)

 

8.

Dr. Wan Aizon Wan Ghopa

Acrylic and GGPM (RM5,000)

 

9.

Prof. Ir. Dr. Shahrir Abdullah

Cable, counduit accessories, this is basically after the original routing has to be cancelled due to limited Amp available (RM7685)

10.

Dr. Wan Hanna Melini Wan Mohtar

Security

 

 [back]